Einer bleibt und einer geht – Mietvertrag bei Trennung und Auszug
Bei der Mark Wohnungsgesellschaft wohnt jeder richtig gut, dennoch kommt es auch in unseren Häusern vor, dass Menschen sich trennen. [>>> weiterlesen]


Das Haus besteht aus drei Mietparteien. Im Jahr 2012 wurden nachträglich moderne und großzügige Vorstellbalkone aus Aluminium und im Erdgeschoss eine Terrasse angebaut. Das Treppenhaus und die Außenanlage sind sehr gepflegt und ordentlich. Eine Gas-Zentralheizung versorgt die Wohnungen mit Wärme. Energieverbrauchsausweis, Energieverbrauchskennwert: 181,4 kWh/(m²a) (inkl. Warmwasser), Energieträger: Erdgas H, Baujahr 1929
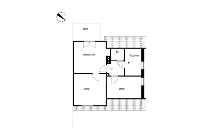
Dieses Objekt liegt zwischen Lüdenscheid und Altena inmitten einer Grünoase, wo kein Durchgangsverkehr die verdiente Ruhe stört. Die Wohnung befindet sich im Dachgeschosses eine Dreifamilienhauses und ist wie folgt aufgeteilt: Zwei Zimmer, Küche, Diele, Bad, Balkon. Die Böden und Wände sind bei Übergabe belagfrei. Die Zimmerdecken und das Bad (über dem Fliesenspiegel) sind mit Raufaser tapeziert. Bei Anmietung der Wohnung fällt eine Kaution in Höhe von drei Monatsgrundmieten an, die auch gerne in Raten angespart werden kann.
In besonders ruhiger Lage können Sie hier eine Wohnung am Hellen Hahn bewohnen. Naturnahes und entspanntes Wohnen wird hier gewährleistet. Perfekt für Menschen die nach Feierabend einfach mal dem Alltagsstress entkommen möchten. Unsere Häuser Am Hellen Hahn befinden sich nicht weit entfernt von den Stadtzentren Altenas und Lüdenscheids. Das Stadtzentrum von Lüdenscheid, mit seinen zahlreichen Einkaufsmöglichkeiten, erreichen Sie mit dem Auto in ca. 20 Minuten, nach Altena benötigen Sie lediglich 10 Autominuten. Die Autobahnauffahrt Lüdenscheid-Nord ist ebenfalls nicht weit entfernt.
Wenn Sie die Immobilien-Karte anzeigen, übertragen Sie Daten an Google Maps (Datenschutzerklärung).

Mark Wohnungsgesellschaft mbH
An den Husareneichen 1
58511 Lüdenscheid
| Mo | 08.00 – 12.00 Uhr |
| 13.00 – 16.00 Uhr | |
| Di | 08.00 – 12.00 Uhr |
| 13.00 – 15.30 Uhr | |
| Mi | 08.00 – 12.00 Uhr |
| 13.00 – 16.00 Uhr | |
| Do | 08.00 – 12.00 Uhr |
| 13.00 – 17.00 Uhr | |
| Fr | geschlossen, telefonisch bis 12 Uhr erreichbar |
Sprechzeiten in der Geschäftsstelle
nur dienstags & donnerstags
Telefonisch und per Mail während den
gesamten Öffnungszeiten.

Tanja Nipkow2026-03-31T08:28:36+00:00
Bei der Mark Wohnungsgesellschaft wohnt jeder richtig gut, dennoch kommt es auch in unseren Häusern vor, dass Menschen sich trennen. [>>> weiterlesen]
Tanja Nipkow2026-02-23T07:20:20+00:00
Die Zahlung der Mietkaution ist für Mieter eine der ersten wichtigen Aufgaben zu Beginn des Mietverhältnisses. Gleichzeitig ist sie für [>>> weiterlesen]
Tanja Nipkow2026-01-28T12:42:39+00:00
Alles wird gut – Schadenbegrenzung mit dem richtigen Versicherungsschutz Es wird viel darüber diskutiert, welche Versicherungen sinnvoll sind und welche [>>> weiterlesen]
Für technisch optimale Nutzung verwendet unsere Webseite Cookies. Wir respektieren aber Ihre Privatsphäre. Hier können Sie Ihre persönlichen Einstellungen vornehmen.