Sauberkeit beginnt vor der eigenen Tür – gemeinsam für ein gutes Miteinander
Ein gepflegtes Wohnumfeld trägt viel dazu bei, dass sich alle Mieter in ihren Wohnungen wohlfühlen. In den Häusern der Mark [>>> weiterlesen]


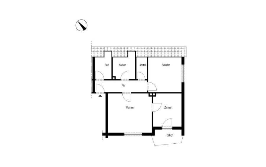
Das Haus wurde im Jahre 1956 gebaut und besteht aus fünf Wohnungen. In den Jahren 2012-2014 haben unsere Häuser in der Parkstraße einen neuen und modernen Anstrich erhalten. Im Zuge dieser Außenarbeiten wurden ebenfalls die Fenster in den Treppenhäusern erneuert. Man verfügt hier über einen eigenen Kellerraum und einen Gemeinschaftswaschraum. Das Haus ist mit einer Gas-Etagenheizung ausgestattet und die Wohnungen verfügen über einen Kabelfernsehanschluss. Energiebedarfsausweis, Energiebedarfskennwert: 322 kWh/(m²a) (inkl. Warmwasser), Energieträger: Erdgas, Baujahr 1961
Die Wohnung befindet sich in der Parkstraße in Lüdenscheid-Brügge. Geschäfte des alltäglichen Bedarfs sind fußläufig erreichbar. Die Innenstadt befindet sich in 6 km Entfernung und ist durch die nahegelegene Busanbindung gut zu erreichen. Die nächste Autobahnzufahrt (Lüdenscheid-Nord) ist knapp 10 km entfernt und mit dem Auto in wenigen Minuten erreichbar. Eine Grundschule und ein Kindergarten liegen in unmittelbarer Entfernung.
Wenn Sie die Immobilien-Karte anzeigen, übertragen Sie Daten an Google Maps (Datenschutzerklärung).

Mark Wohnungsgesellschaft mbH
An den Husareneichen 1
58511 Lüdenscheid
| Mo | 08.00 – 12.00 Uhr |
| 13.00 – 16.00 Uhr | |
| Di | 08.00 – 12.00 Uhr |
| 13.00 – 15.30 Uhr | |
| Mi | 08.00 – 12.00 Uhr |
| 13.00 – 16.00 Uhr | |
| Do | 08.00 – 12.00 Uhr |
| 13.00 – 17.00 Uhr | |
| Fr | geschlossen, telefonisch bis 12 Uhr erreichbar |
Sprechzeiten in der Geschäftsstelle
nur dienstags & donnerstags
Telefonisch und per Mail während den
gesamten Öffnungszeiten.

Tanja Nipkow2026-04-16T13:22:44+00:00
Ein gepflegtes Wohnumfeld trägt viel dazu bei, dass sich alle Mieter in ihren Wohnungen wohlfühlen. In den Häusern der Mark [>>> weiterlesen]
Tanja Nipkow2026-03-31T08:28:36+00:00
Bei der Mark Wohnungsgesellschaft wohnt jeder richtig gut, dennoch kommt es auch in unseren Häusern vor, dass Menschen sich trennen. [>>> weiterlesen]
Tanja Nipkow2026-02-23T07:20:20+00:00
Die Zahlung der Mietkaution ist für Mieter eine der ersten wichtigen Aufgaben zu Beginn des Mietverhältnisses. Gleichzeitig ist sie für [>>> weiterlesen]
Für technisch optimale Nutzung verwendet unsere Webseite Cookies. Wir respektieren aber Ihre Privatsphäre. Hier können Sie Ihre persönlichen Einstellungen vornehmen.