Einer bleibt und einer geht – Mietvertrag bei Trennung und Auszug
Bei der Mark Wohnungsgesellschaft wohnt jeder richtig gut, dennoch kommt es auch in unseren Häusern vor, dass Menschen sich trennen. [>>> weiterlesen]


Die Wohnung befindet sich in einem ruhigen und ordentlichen Mehrfamilienhaus. Jeder Mietpartei ist ein separater Kellerraum zugewiesen und Sie haben die Möglichkeit einen eigenen Waschmaschinenanschluss in dem vorhandenen Gemeinschaftswaschraum zu nutzen. Das Haus ist mit einer Gas-Etagenheizung ausgestattet und der Fernsehempfang ist über eine Gemeinschafts-Satellitenanlage geregelt.
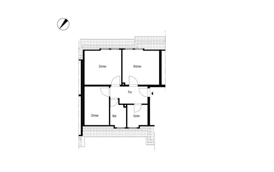
Wir bieten Ihnen hier eine tolle 3 Zimmer Wohnung, welche außerdem über ein Bad, eine Küche und eine Diele verfügt. Die Wohnung wird durch eine Gas-Etagenheizung mit Wärme versorgt, die Vorauszahlungen für Gas und Strom werden somit vom Mieter direkt an das Versorgungsunternehmen geleistet und sind zuzüglich der o.g. Miete zu rechnen. Bei Anmietung erheben wir drei Grundmieten Kaution. Diese kann nach individueller Vereinbarung in monatlichen Raten eingezahlt werden.
Das Haus befindet sich im ruhigen und schön gelegenen Stadtteil Bierbaum, in unmittelbarer Nähe des Krankenhauses Hellersen. Der nächste Supermarkt und eine Bäckerei sind mit dem Auto in wenigen Minuten erreichbar und auch zu Fuß in ca. 10-15 Minuten zu erreichen. Die Stadtmitte ist 3,26 km entfernt und auch durch die ideale Busanbindung (Linie 54) in wenigen Minuten erreichbar. Attraktiv sind weiterhin nahegelegene Spazierwege.
Wenn Sie die Immobilien-Karte anzeigen, übertragen Sie Daten an Google Maps (Datenschutzerklärung).

Mark Wohnungsgesellschaft mbH
An den Husareneichen 1
58511 Lüdenscheid
| Mo | 08.00 – 12.00 Uhr |
| 13.00 – 16.00 Uhr | |
| Di | 08.00 – 12.00 Uhr |
| 13.00 – 15.30 Uhr | |
| Mi | 08.00 – 12.00 Uhr |
| 13.00 – 16.00 Uhr | |
| Do | 08.00 – 12.00 Uhr |
| 13.00 – 17.00 Uhr | |
| Fr | geschlossen, telefonisch bis 12 Uhr erreichbar |
Sprechzeiten in der Geschäftsstelle
nur dienstags & donnerstags
Telefonisch und per Mail während den
gesamten Öffnungszeiten.

Tanja Nipkow2026-03-31T08:28:36+00:00
Bei der Mark Wohnungsgesellschaft wohnt jeder richtig gut, dennoch kommt es auch in unseren Häusern vor, dass Menschen sich trennen. [>>> weiterlesen]
Tanja Nipkow2026-02-23T07:20:20+00:00
Die Zahlung der Mietkaution ist für Mieter eine der ersten wichtigen Aufgaben zu Beginn des Mietverhältnisses. Gleichzeitig ist sie für [>>> weiterlesen]
Tanja Nipkow2026-01-28T12:42:39+00:00
Alles wird gut – Schadenbegrenzung mit dem richtigen Versicherungsschutz Es wird viel darüber diskutiert, welche Versicherungen sinnvoll sind und welche [>>> weiterlesen]
Für technisch optimale Nutzung verwendet unsere Webseite Cookies. Wir respektieren aber Ihre Privatsphäre. Hier können Sie Ihre persönlichen Einstellungen vornehmen.